Voorbeeldtuinen

Tuin inspiratie

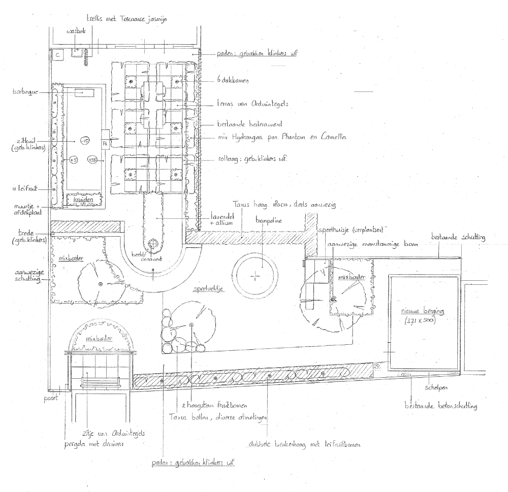
Klassieke achtertuin met trampoline, tuinhuis en overkapping

In het historische hart van Middelburg ligt deze klassieke tuin die perfect aansluit bij het monumentale karakter van de woning. Deze tuin voor het hele gezin combineert klassieke elementen met kindvriendelijke aspecten.

De paden van gebakken klinkers verbinden de verschillende tuindelen met elkaar. Het gevarieerde beplantingsplan met groenblijvers zorgt het hele jaar door voor een levendige uitstraling, daarnaast zorgen de fruitbomen voor het nodige fruit.

De hoogteverschillen in de tuin creëren een speels effect en de klassieke borders geven de tuin een tijdloze uitstraling. Het tuinhuis biedt praktische bergruimte zonder afbreuk te doen aan het historische karakter van deze stadstuin.

0/5 (0 Beoordeling)

Waar we trots op zijn

Lees wat klanten over ons zeggen

Benieuwd wat we voor u kunnen betekenen?

Neem contact met ons op.